Ваш город:
Кострома
Кострома
Ярославль
+7 (4942) 64-11-11
Квартиры в новостройках
Готовая недвижимость
О ГРУППЕ КФК
О компании
Вакансии
Технология
Видео
Декларации
Правовые ресурсы
Ипотека
Этапы строительства
Декларации
Новости и акции
Контакты
Избранное (0)
Кострома
Ярославль
Кострома
Кострома
Ярославль
Кострома
Ярославль
+7 (4942) 64-11-11
+7 (4942) 64-11-11
Режим работы
ПН-ПТ
09:00 - 19:00
СБ
10:00 - 14:00
ВС
Выходной
Избранное (0)
Квартиры в новостройках
Готовая недвижимость
Услуги
Этапы строительства
Декларации
Новости и акции
Контакты
Кострома
Ярославль
Все типы недвижимости
Квартира
Коттедж
Коммерческая недвижимость
Таунхаус
Гараж
помещение
Земельный участок
Дом
Все жилые комплексы
«Дом на Воскресенском»
45/28
Галичский проезд
Галичский проезд
Дом 32 "Б" ЖК Романовский (Лесная 11)
ЖК "Венеция-2"
ЖК "Европейский"
ЖК "ЧЕМПИОН" (Паново)
заволжье
Заволсжкий
Кадыйский
квартал "Озерный" ЖК "Венеция"
квартал "Озерный" ЖК "Венеция"
Ключевка в ЖК Венеция
Ключевка в ЖК Венеция
Кострома
Костромская область
Костромской
Костромской район
Коттеджный поселок "Малиновка"
Коттеджный посёлок «Малиновка»
Красносельский
Ленина
Ленинский
Ленинский район
мкр Новый город
мкр Новый город
Некрасовский
Нерехтский
п. Волжский
Первомайский
Прикубанский
Свердловский
Судиславский
ул. Ленина, д. 131
ул. Ленина, д. 131
ул. Маршала Новикова, д. 25
ул. Нижняя Дебря д. 68
ул. Соловьиная, д.15
Фабричный
Фабричный район
центральная
Центральный
Центральный район
Центрпльный
Шарьинский
Юбилейный район
найдено
186
найдено
186
Развернуть поиск
Назад
Группа компаний «КФК»
Каталог
Кострома
ЖК "Европейский"
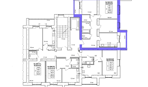
Продается 3-комн. квартира № 11 пл. 83,3 м²
Продается 3-комн. квартира № 11 пл. 83,3 м²
Город
Кострома
Адрес
ЖК "Европейский"
Дом
№ 36
Квартира
№ 11
Комнат
3
Площадь
Общая/Жилая/Кухни
83,3 / 45,79 / 14,49 м²
Этаж
2/3
Дата сдачи
7 836 864
Добавить в избранное
Получить консультацию
по покупке этой квартиры
+7 (4942) 64-11-11
Офис продаж: г. Кострома, ул. Советская д. 21А корпус 3
Распечатать PDF
Отправить на E-mail
Уже посмотрели эту квартиру:
Всего 182,
Сегодня 21
Оставьте заявку на бронирование квартиры в этом доме
С Вами свяжется менеджер для подтверждения бронирования!
Я принимаю
пользовательское соглашение
Ваша квартира в доме
3 этаж
2 этаж
1 этаж
3 этаж
2 этаж
1 этаж
3 этаж
2 этаж
1 этаж
1 подъезд
1 под.
6 кв. свободно
6 кв. своб.
2 подъезд
2 под.
8 кв. свободно
8 кв. своб.
3 подъезд
3 под.
8 кв. свободно
8 кв. своб.
№ 6
2-комн.
66,32/28,19/16,7 м²
6 954 315
№ 7
Продано
№ 8
3-комн.
83,8/45,79/14,49 м²
7 883 904
№ 3
Продано
№ 4
1-комн.
34,94/13,88/8,94 м²
3 903 497
№ 5
3-комн.
83,8/45,79/14,49 м²
7 883 904
№ 1
3-комн.
83,8/45,79/14,49 м²
7 801 780
№ 2
3-комн.
83,32/43,25/16,7 м²
7 838 746
№ 14
3-комн.
83,3/45,79/14,49 м²
7 836 864
№ 15
1-комн.
34,94/13,88/8,94 м²
3 886 376
№ 16
2-комн.
66,32/28,19/16,7 м²
6 856 825
№ 11
Ваша
квартира
№ 12
1-комн.
34,94/13,88/8,94 м²
3 917 193
№ 13
2-комн.
66,32/28,19/16,7 м²
6 856 825
№ 9
3-комн.
87,42/45,56/16,7 м²
7 967 459
№ 10
3-комн.
83,3/45,79/14,49 м²
7 755 230
№ 23
2-комн.
66,09/28,75/14,89 м²
6 833 045
№ 24
2-комн.
61,14/26,79/14,41 м²
6 890 478
№ 25
3-комн.
83,01/45,79/14,21 м²
7 809 581
№ 20
2-комн.
66,09/28,75/14,89 м²
6 865 429
№ 21
Продано
№ 22
3-комн.
83,01/45,79/14,21 м²
8 134 980
№ 17
3-комн.
83,03/45,79/14,21 м²
7 730 093
№ 18
2-комн.
60,96/25,79/14,81 м²
6 452 006
№ 19
1-комн.
37,02/13,39/9,66 м²
3 990 756
№ 6
2-комн., 3 эт.
66,32/28,19/16,7 м²
6 954 315 Р
№ 8
3-комн., 3 эт.
83,8/45,79/14,49 м²
7 883 904 Р
№ 4
1-комн., 2 эт.
34,94/13,88/8,94 м²
3 903 497 Р
№ 5
3-комн., 2 эт.
83,8/45,79/14,49 м²
7 883 904 Р
№ 1
3-комн., 1 эт.
83,8/45,79/14,49 м²
7 801 780 Р
№ 2
3-комн., 1 эт.
83,32/43,25/16,7 м²
7 838 746 Р
№ 14
3-комн., 3 эт.
83,3/45,79/14,49 м²
7 836 864 Р
№ 15
1-комн., 3 эт.
34,94/13,88/8,94 м²
3 886 376 Р
№ 16
2-комн., 3 эт.
66,32/28,19/16,7 м²
6 856 825 Р
№ 11
3-комн., 2 эт.
83,3/45,79/14,49 м²
7 836 864 Р
№ 12
1-комн., 2 эт.
34,94/13,88/8,94 м²
3 917 193 Р
№ 13
2-комн., 2 эт.
66,32/28,19/16,7 м²
6 856 825 Р
№ 9
3-комн., 1 эт.
87,42/45,56/16,7 м²
7 967 459 Р
№ 10
3-комн., 1 эт.
83,3/45,79/14,49 м²
7 755 230 Р
№ 23
2-комн., 3 эт.
66,09/28,75/14,89 м²
6 833 045 Р
№ 24
2-комн., 3 эт.
61,14/26,79/14,41 м²
6 890 478 Р
№ 25
3-комн., 3 эт.
83,01/45,79/14,21 м²
7 809 581 Р
№ 20
2-комн., 2 эт.
66,09/28,75/14,89 м²
6 865 429 Р
№ 22
3-комн., 2 эт.
83,01/45,79/14,21 м²
8 134 980 Р
№ 17
3-комн., 1 эт.
83,03/45,79/14,21 м²
7 730 093 Р
№ 18
2-комн., 1 эт.
60,96/25,79/14,81 м²
6 452 006 Р
№ 19
1-комн., 1 эт.
37,02/13,39/9,66 м²
3 990 756 Р
Свободно квартир: 22
Малоэтажный жилой комплекс «Европейский» - дома из керамического кирпича, с панорамным остеклением и автономным отоплением.
Это уникальное место, где комфорт и стиль сочетаются с природной красотой.
Мы предлагаем широкий выбор квартир с различными планировками — от уютных однушек до просторных трехкомнатных квартир.
Рассчитайте примерный платеж по ипотеке с калькулятором от ДомКлик
Наши гарантии
Полное бесплатное юридическое сопровождение сделки;
Государственная регистрация договора участия в долевом строительстве без очереди;
Работаем по Федеральному закону №214-Ф3 от 30.12.2004;
Наличие всей необходимой разрешительной документации на каждый объект;
Похожие предложения
3-комн. квартира № 4 пл. 80,44 м²
7 722 240
ЖК "Европейский"
3-комн. квартира № 10 пл. 80,73 м²
7 669 350
ЖК "Европейский"
3-комн. квартира № 9 пл. 87,42 м²
7 967 459
ЖК "Европейский"
3-комн. квартира № 23 пл. 80,99 м²
7 775 040
ЖК "Европейский"
3-комн. квартира № 11 пл. 84,85 м²
8 060 750
ЖК "Европейский"
3-комн. квартира № 20 пл. 80,99 м²
7 775 040
ЖК "Европейский"
3-комн. квартира № 3 пл. 80,46 м²
7 643 700
ЖК "Европейский"
3-комн. квартира № 64 пл. 88,6 м²
7 557 580
ЖК "ЧЕМПИОН" (Паново)
Ранее Вы просматривали
2-комн. квартира № 9 пл. 63,28 м²
6 770 960
ЖК "Европейский"
3-комн. квартира № 11 пл. 83,3 м²
7 836 864
ЖК "Европейский"
Наверх
Вход
Карта объектов
Местоположение
Местоположение
Местоположение
Отложено в избранное
отправить на e-mail
заказать звонок
Отправить сообщение
изменить статус квартиры
Забронировать квартиру
Оставить отзыв
Подписаться
Восстановление пароля
Ипотека
Обмен старой квартиры на новую
Использование государственных сертификатов
Беспроцентная рассрочка
от застройщика
Индивидуальный график оплат
Регистрация
Вы успешно зарегистрированы и авторизованы!
личный кабинет
каталог
3d-тур
Путешествие по Венеции
Вы интересовались данной квартирой
Отправить заявку
Отправить заявку
Советы профессионала
Советы профессионала
Онлайн-трансляция
Квартиры