Ваш город:
Кострома
Кострома
Ярославль
+7 (4942) 64-11-11
Квартиры в новостройках
Готовая недвижимость
О ГРУППЕ КФК
О компании
Вакансии
Технология
Видео
Декларации
Этапы строительства
Декларации
Новости и акции
Контакты
Избранное (0)
Кострома
Ярославль
Кострома
Кострома
Ярославль
Кострома
Ярославль
+7 (4942) 64-11-11
+7 (4942) 64-11-11
Режим работы
ПН-ПТ
09:00 - 19:00
СБ
10:00 - 14:00
ВС
Выходной
Избранное (0)
Квартиры в новостройках
Готовая недвижимость
Услуги
Этапы строительства
Декларации
Новости и акции
Контакты
Кострома
Ярославль
Все типы недвижимости
Квартира
Коттедж
Коммерческая недвижимость
Таунхаус
Гараж
помещение
Земельный участок
Дом
Все жилые комплексы
«Дом на Воскресенском»
45/28
Галичский проезд
Галичский проезд
Дом 32 "Б" ЖК Романовский (Лесная 11)
ЖК "Венеция-2"
ЖК "Европейский"
ЖК "ЧЕМПИОН" (Паново)
Заволжский
Кадыйский
квартал "Озерный" ЖК "Венеция"
квартал "Озерный" ЖК "Венеция"
Ключевка в ЖК Венеция
Ключевка в ЖК Венеция
Ключевка в ЖК Венеция
Кострома
Костромская область
Костромской
Костромской район
Коттеджный поселок "Малиновка"
Коттеджный посёлок «Малиновка»
Красносельский
Ленина
Ленинский
Ленинский район
мкр Новый город
мкр Новый город
Некрасовский
Нерехтский
п. Волжский
Первомайский
Прикубанский
Свердловский
Судиславский
ул. Ленина, д. 131
ул. Ленина, д. 131
ул. Маршала Новикова, д. 25
ул. Нижняя Дебря д. 68
ул. Соловьиная, д.15
Фабричный
Фабричный район
центральная
Центральный
Центральный район
Центрпльный
Шарьинский
Юбилейный район
найдено
297
найдено
297
Развернуть поиск
Назад
Группа компаний «КФК»
Каталог
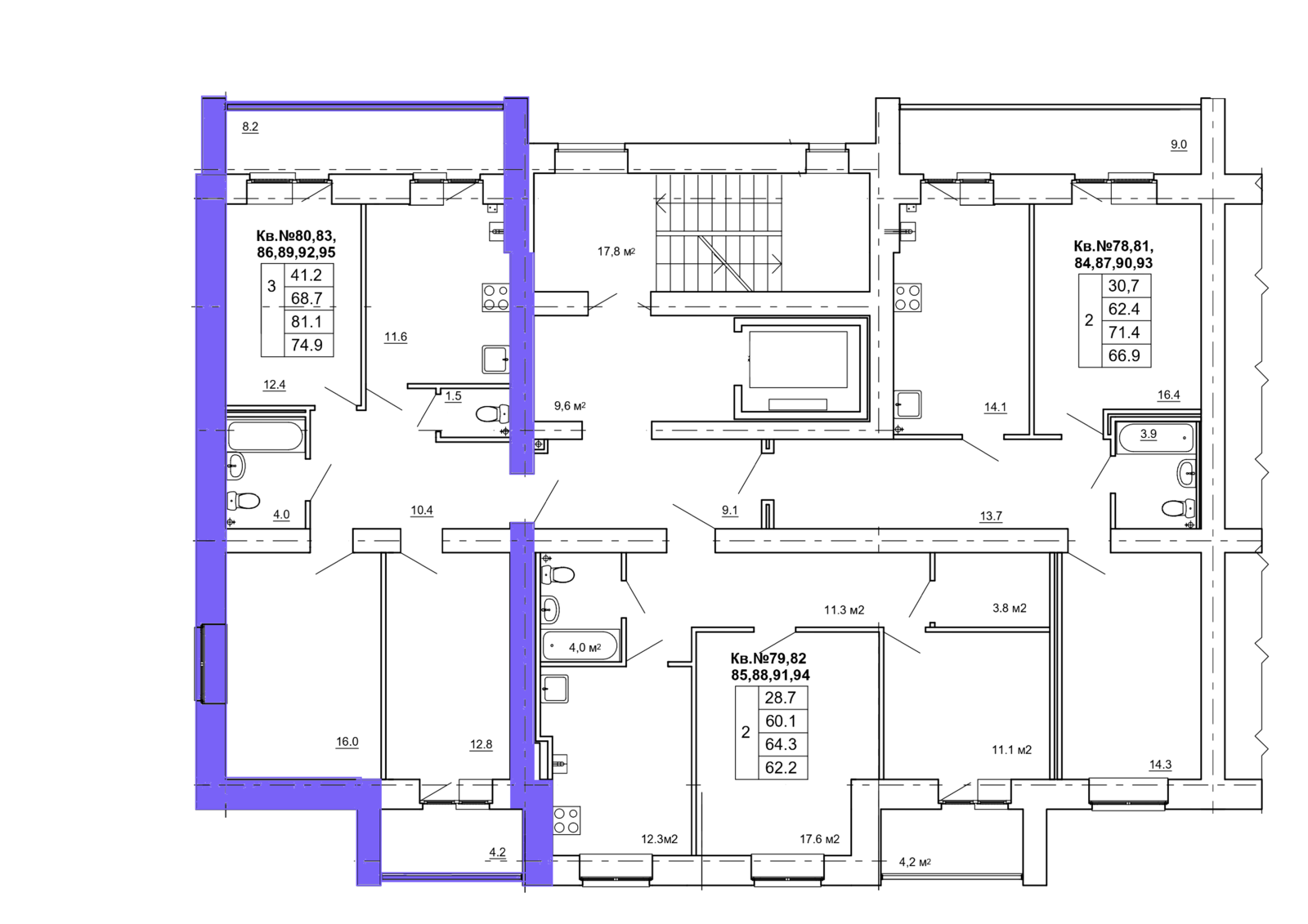
Продается 3-комн. квартира № 95 пл. 81,1 м²
Продается 3-комн. квартира № 95 пл. 81,1 м²
Город
Кострома
Адрес
ЖК "ЧЕМПИОН" (Паново)
Дом
№ 11
Квартира
№ 95
Комнат
3
Площадь
Общая/Жилая/Кухни
81,1 / 41,2 / 11,6 м²
Этаж
8/9
Дата сдачи
7 477 420
Добавить в избранное
Забронировать,
получить консультацию
+7 (4942) 64-11-11
Офис продаж: г. Кострома, ул. Советская д. 21А корпус 3
Распечатать PDF
Отправить на E-mail
Уже посмотрели эту квартиру:
Всего 751,
Сегодня 19
Оставьте заявку на бронирование квартиры в этом доме
С Вами свяжется менеджер для подтверждения бронирования!
Я принимаю
пользовательское соглашение
Ваша квартира в доме
9 этаж
8 этаж
7 этаж
6 этаж
5 этаж
4 этаж
3 этаж
2 этаж
1 этаж
9 этаж
8 этаж
7 этаж
6 этаж
5 этаж
4 этаж
3 этаж
2 этаж
1 этаж
9 этаж
8 этаж
7 этаж
6 этаж
5 этаж
4 этаж
3 этаж
2 этаж
1 этаж
1 подъезд
1 под.
14 кв. свободно
14 кв. своб.
2 подъезд
2 под.
22 кв. свободно
22 кв. своб.
3 подъезд
3 под.
17 кв. свободно
17 кв. своб.
№ 33
2-комн.
66/30,6/13,9 м²
5 926 800
№ 34
1-комн.
42/17,3/11,5 м²
4 305 000
№ 35
Продано
№ 36
2-комн.
64,4/31,9/10,6 м²
5 924 800
№ 29
Забронировано
№ 30
Продано
№ 31
Продано
№ 32
2-комн.
64,4/31,9/10,6 м²
5 924 800
№ 25
Продано
№ 26
Продано
№ 27
Продано
№ 28
2-комн.
64,4/31,9/10,6 м²
5 924 800
№ 21
Продано
№ 22
Продано
№ 23
Продано
№ 24
2-комн.
64,4/31,9/10,6 м²
5 924 800
№ 17
Продано
№ 18
Продано
№ 19
Продано
№ 20
Продано
№ 13
Продано
№ 14
1-комн.
42/17,3/11,5 м²
4 305 000
№ 15
Продано
№ 16
2-комн.
64,4/31,9/10,6 м²
5 924 800
№ 09
Продано
№ 10
Продано
№ 11
Продано
№ 12
2-комн.
64,4/31,9/10,6 м²
5 924 800
№ 05
2-комн.
66/30,6/13,9 м²
5 874 000
№ 06
Продано
№ 07
Продано
№ 08
2-комн.
64,4/31,9/10,6 м²
5 924 800
№ 01
2-комн.
66/30,6/13,9 м²
5 874 000
№ 02
1-комн.
42/17,3/11,5 м²
4 284 000
№ 03
Продано
№ 04
2-комн.
64,4/31,9/10,6 м²
5 892 600
№ 68
Продано
№ 69
1-комн.
49,7/19,7/12,1 м²
4 796 050
№ 70
Продано
№ 71
Продано
№ 64
Продано
№ 65
1-комн.
49,7/19,7/12,1 м²
4 771 200
№ 66
1-комн.
44/15,3/12,4 м²
4 369 200
№ 67
2-комн.
66,7/34/10,4 м²
5 969 650
№ 60
Продано
№ 61
1-комн.
49,7/19,7/12,1 м²
4 771 200
№ 62
Продано
№ 63
2-комн.
66,7/34/10,4 м²
5 969 650
№ 56
Продано
№ 57
1-комн.
49,7/19,7/12,1 м²
4 771 200
№ 58
1-комн.
44/15,3/12,4 м²
4 347 200
№ 59
2-комн.
66,7/34/10,4 м²
5 969 650
№ 52
Продано
№ 53
1-комн.
49,7/19,7/12,1 м²
4 771 200
№ 54
1-комн.
44/15,3/12,4 м²
4 347 200
№ 55
Продано
№ 48
Продано
№ 49
1-комн.
49,7/19,7/12,1 м²
4 771 200
№ 50
Продано
№ 51
2-комн.
66,7/34/10,4 м²
5 969 650
№ 44
Продано
№ 45
1-комн.
49,7/19,7/12,1 м²
4 771 200
№ 46
1-комн.
44/15,3/12,4 м²
4 347 200
№ 47
2-комн.
66,7/34/10,4 м²
5 969 650
№ 40
Продано
№ 41
1-комн.
49,7/19,7/12,1 м²
4 746 350
№ 42
1-комн.
44/15,3/12,4 м²
4 347 200
№ 43
2-комн.
66,7/34/10,4 м²
5 969 650
№ 37
3-комн.
88,6/42,1/13,1 м²
7 681 620
№ 38
1-комн.
49,7/19,7/12,1 м²
4 721 500
№ 39
2-комн.
70,4/29,6/12,4 м²
5 984 000
№ 96
2-комн.
71,4/30,7/14,1 м²
6 176 100
№ 97
2-комн.
64,3/28,7/12,3 м²
5 979 900
№ 98
Продано
№ 93
Продано
№ 94
2-комн.
64,3/28,7/12,3 м²
5 979 900
№ 95
Ваша
квартира
№ 90
Продано
№ 91
2-комн.
64,3/28,7/12,3 м²
5 979 900
№ 92
3-комн.
81,1/41,2/11,6 м²
7 477 420
№ 87
Продано
№ 88
2-комн.
64,3/28,7/12,3 м²
5 979 900
№ 89
Продано
№ 84
Забронировано
№ 85
2-комн.
64,3/28,7/12,3 м²
5 979 900
№ 86
Продано
№ 81
Продано
№ 82
2-комн.
64,3/28,7/12,3 м²
5 979 900
№ 83
Продано
№ 78
2-комн.
71,4/30,7/14,1 м²
6 140 400
№ 79
2-комн.
64,3/28,7/12,3 м²
5 979 900
№ 80
Продано
№ 75
2-комн.
71,4/30,7/14,1 м²
6 126 120
№ 76
2-комн.
64,3/28,7/12,3 м²
5 979 900
№ 77
3-комн.
81,1/41,2/11,6 м²
7 380 100
№ 72
2-комн.
71,4/30,7/14,1 м²
6 069 000
№ 73
2-комн.
64,3/28,7/12,3 м²
5 947 750
№ 74
3-комн.
81,1/41,2/11,6 м²
7 355 770
№ 33
2-комн., 9 эт.
66/30,6/13,9 м²
5 926 800 Р
№ 34
1-комн., 9 эт.
42/17,3/11,5 м²
4 305 000 Р
№ 36
2-комн., 9 эт.
64,4/31,9/10,6 м²
5 924 800 Р
№ 32
2-комн., 8 эт.
64,4/31,9/10,6 м²
5 924 800 Р
№ 28
2-комн., 7 эт.
64,4/31,9/10,6 м²
5 924 800 Р
№ 24
2-комн., 6 эт.
64,4/31,9/10,6 м²
5 924 800 Р
№ 14
1-комн., 4 эт.
42/17,3/11,5 м²
4 305 000 Р
№ 16
2-комн., 4 эт.
64,4/31,9/10,6 м²
5 924 800 Р
№ 12
2-комн., 3 эт.
64,4/31,9/10,6 м²
5 924 800 Р
№ 5
2-комн., 2 эт.
66/30,6/13,9 м²
5 874 000 Р
№ 8
2-комн., 2 эт.
64,4/31,9/10,6 м²
5 924 800 Р
№ 1
2-комн., 1 эт.
66/30,6/13,9 м²
5 874 000 Р
№ 2
1-комн., 1 эт.
42/17,3/11,5 м²
4 284 000 Р
№ 4
2-комн., 1 эт.
64,4/31,9/10,6 м²
5 892 600 Р
№ 69
1-комн., 9 эт.
49,7/19,7/12,1 м²
4 796 050 Р
№ 65
1-комн., 8 эт.
49,7/19,7/12,1 м²
4 771 200 Р
№ 66
1-комн., 8 эт.
44/15,3/12,4 м²
4 369 200 Р
№ 67
2-комн., 8 эт.
66,7/34/10,4 м²
5 969 650 Р
№ 61
1-комн., 7 эт.
49,7/19,7/12,1 м²
4 771 200 Р
№ 63
2-комн., 7 эт.
66,7/34/10,4 м²
5 969 650 Р
№ 57
1-комн., 6 эт.
49,7/19,7/12,1 м²
4 771 200 Р
№ 58
1-комн., 6 эт.
44/15,3/12,4 м²
4 347 200 Р
№ 59
2-комн., 6 эт.
66,7/34/10,4 м²
5 969 650 Р
№ 53
1-комн., 5 эт.
49,7/19,7/12,1 м²
4 771 200 Р
№ 54
1-комн., 5 эт.
44/15,3/12,4 м²
4 347 200 Р
№ 49
1-комн., 4 эт.
49,7/19,7/12,1 м²
4 771 200 Р
№ 51
2-комн., 4 эт.
66,7/34/10,4 м²
5 969 650 Р
№ 45
1-комн., 3 эт.
49,7/19,7/12,1 м²
4 771 200 Р
№ 46
1-комн., 3 эт.
44/15,3/12,4 м²
4 347 200 Р
№ 47
2-комн., 3 эт.
66,7/34/10,4 м²
5 969 650 Р
№ 41
1-комн., 2 эт.
49,7/19,7/12,1 м²
4 746 350 Р
№ 42
1-комн., 2 эт.
44/15,3/12,4 м²
4 347 200 Р
№ 43
2-комн., 2 эт.
66,7/34/10,4 м²
5 969 650 Р
№ 37
3-комн., 1 эт.
88,6/42,1/13,1 м²
7 681 620 Р
№ 38
1-комн., 1 эт.
49,7/19,7/12,1 м²
4 721 500 Р
№ 39
2-комн., 1 эт.
70,4/29,6/12,4 м²
5 984 000 Р
№ 96
2-комн., 9 эт.
71,4/30,7/14,1 м²
6 176 100 Р
№ 97
2-комн., 9 эт.
64,3/28,7/12,3 м²
5 979 900 Р
№ 94
2-комн., 8 эт.
64,3/28,7/12,3 м²
5 979 900 Р
№ 95
3-комн., 8 эт.
81,1/41,2/11,6 м²
7 477 420 Р
№ 91
2-комн., 7 эт.
64,3/28,7/12,3 м²
5 979 900 Р
№ 92
3-комн., 7 эт.
81,1/41,2/11,6 м²
7 477 420 Р
№ 88
2-комн., 6 эт.
64,3/28,7/12,3 м²
5 979 900 Р
№ 85
2-комн., 5 эт.
64,3/28,7/12,3 м²
5 979 900 Р
№ 82
2-комн., 4 эт.
64,3/28,7/12,3 м²
5 979 900 Р
№ 78
2-комн., 3 эт.
71,4/30,7/14,1 м²
6 140 400 Р
№ 79
2-комн., 3 эт.
64,3/28,7/12,3 м²
5 979 900 Р
№ 75
2-комн., 2 эт.
71,4/30,7/14,1 м²
6 126 120 Р
№ 76
2-комн., 2 эт.
64,3/28,7/12,3 м²
5 979 900 Р
№ 77
3-комн., 2 эт.
81,1/41,2/11,6 м²
7 380 100 Р
№ 72
2-комн., 1 эт.
71,4/30,7/14,1 м²
6 069 000 Р
№ 73
2-комн., 1 эт.
64,3/28,7/12,3 м²
5 947 750 Р
№ 74
3-комн., 1 эт.
81,1/41,2/11,6 м²
7 355 770 Р
Свободно квартир: 53
Рассчитайте примерный платеж по ипотеке с калькулятором от ДомКлик
Наши гарантии
Полное бесплатное юридическое сопровождение сделки;
Государственная регистрация договора участия в долевом строительстве без очереди;
Работаем по Федеральному закону №214-Ф3 от 30.12.2004;
Наличие всей необходимой разрешительной документации на каждый объект;
Похожие предложения
3-комн. квартира № 74 пл. 81,1 м²
7 355 770
ЖК "ЧЕМПИОН" (Паново)
3-комн. квартира № 23 пл. 80,99 м²
7 775 040
ЖК "Европейский"
3-комн. квартира № 17 пл. 83,03 м²
7 730 093
ЖК "Европейский"
3-комн. квартира № 3 пл. 80,46 м²
7 643 700
ЖК "Европейский"
3-комн. квартира № 10 пл. 83,3 м²
7 755 230
ЖК "Европейский"
3-комн. квартира № 19 пл. 80,99 м²
7 694 050
ЖК "Европейский"
3-комн. квартира № 20 пл. 80,99 м²
7 775 040
ЖК "Европейский"
3-комн. квартира № 7 пл. 80,44 м²
7 722 240
ЖК "Европейский"
Ранее Вы просматривали
1-комн. квартира № 61 пл. 49,7 м²
4 771 200
ЖК "ЧЕМПИОН" (Паново)
1-комн. квартира № 14 пл. 42 м²
4 305 000
ЖК "ЧЕМПИОН" (Паново)
3-комн. квартира № 95 пл. 81,1 м²
7 477 420
ЖК "ЧЕМПИОН" (Паново)
Наверх
Вход
Карта объектов
Местоположение
Местоположение
Местоположение
Отложено в избранное
отправить на e-mail
заказать звонок
Отправить сообщение
изменить статус квартиры
Забронировать квартиру
Оставить отзыв
Подписаться
Восстановление пароля
Ипотека
Обмен старой квартиры на новую
Использование государственных сертификатов
Беспроцентная рассрочка
от застройщика
Индивидуальный график оплат
Регистрация
Вы успешно зарегистрированы и авторизованы!
личный кабинет
каталог
3d-тур
Путешествие по Венеции
Вы интересовались данной квартирой
Отправить заявку
Отправить заявку
Советы профессионала
Советы профессионала
Онлайн-трансляция
Квартиры