Ваш город:
Кострома
Кострома
Ярославль
+7 (4942) 64-11-11
Квартиры в новостройках
Готовая недвижимость
О ГРУППЕ КФК
О компании
Вакансии
Технология
Видео
Декларации
Этапы строительства
Декларации
Новости и акции
Контакты
Избранное (0)
Кострома
Ярославль
Кострома
Кострома
Ярославль
Кострома
Ярославль
+7 (4942) 64-11-11
+7 (4942) 64-11-11
Режим работы
ПН-ПТ
09:00 - 19:00
СБ
10:00 - 14:00
ВС
Выходной
Избранное (0)
Квартиры в новостройках
Готовая недвижимость
Услуги
Этапы строительства
Декларации
Новости и акции
Контакты
Кострома
Ярославль
Все типы недвижимости
Квартира
Коттедж
Коммерческая недвижимость
Таунхаус
Гараж
помещение
Земельный участок
Дом
Все жилые комплексы
«Дом на Воскресенском»
45/28
Галичский проезд
Галичский проезд
Дом 32 "Б" ЖК Романовский (Лесная 11)
ЖК "Венеция-2"
ЖК "Европейский"
ЖК "ЧЕМПИОН" (Паново)
Заволжский
Кадыйский
квартал "Озерный" ЖК "Венеция"
квартал "Озерный" ЖК "Венеция"
Ключевка в ЖК Венеция
Ключевка в ЖК Венеция
Ключевка в ЖК Венеция
Кострома
Костромская область
Костромской
Костромской район
Коттеджный поселок "Малиновка"
Коттеджный посёлок «Малиновка»
Красносельский
Ленина
Ленинский
Ленинский район
мкр Новый город
мкр Новый город
Некрасовский
Нерехтский
п. Волжский
Первомайский
Прикубанский
Свердловский
Судиславский
ул. Ленина, д. 131
ул. Ленина, д. 131
ул. Маршала Новикова, д. 25
ул. Нижняя Дебря д. 68
ул. Соловьиная, д.15
Фабричный
Фабричный район
центральная
Центральный
Центральный район
Центрпльный
Шарьинский
Юбилейный район
найдено
297
найдено
297
Развернуть поиск
Назад
Группа компаний «КФК»
Каталог
Кострома
ЖК "Европейский"
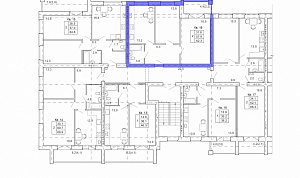
Продается 3-комн. квартира № 10 пл. 60,3 м²
Продается 3-комн. квартира № 10 пл. 60,3 м²
перейти в каталог
Похожие предложения
2-комн. квартира № 16 пл. 62,3 м²
5 066 236
ЖК "Венеция-2"
Наверх
Вход
Карта объектов
Местоположение
Местоположение
Местоположение
Отложено в избранное
отправить на e-mail
заказать звонок
Отправить сообщение
изменить статус квартиры
Забронировать квартиру
Оставить отзыв
Подписаться
Восстановление пароля
Ипотека
Обмен старой квартиры на новую
Использование государственных сертификатов
Беспроцентная рассрочка
от застройщика
Индивидуальный график оплат
Регистрация
Вы успешно зарегистрированы и авторизованы!
личный кабинет
каталог
3d-тур
Путешествие по Венеции
Вы интересовались данной квартирой
Отправить заявку
Отправить заявку
Советы профессионала
Советы профессионала
Онлайн-трансляция
Квартиры