Купить 2-комнатную квартиру в Костроме от застройщика КФК №1

Продается 2-комн. квартира № 09 пл. 62,63 м²

Похожие предложения

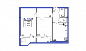
2-комн. квартира № 70 пл. 55,7 м²
2 979 950
ЖК "ЧЕМПИОН" (Паново)